



164_Nový dům
místo: Žacléřklient: soukromá osoba
projekt: 2020 -
dokončení: -
stávající stav: studie
Na počátku cesty k návrhu stála klíčová otázka přístupu ke stávajícímu domu. Otázka související s požadavky rodiny na obytný komfort, který stávající dům nemůže nabídnou, a naší snahou tuto pro svou dobu typickou stavbu do budoucích plánů integrovat.
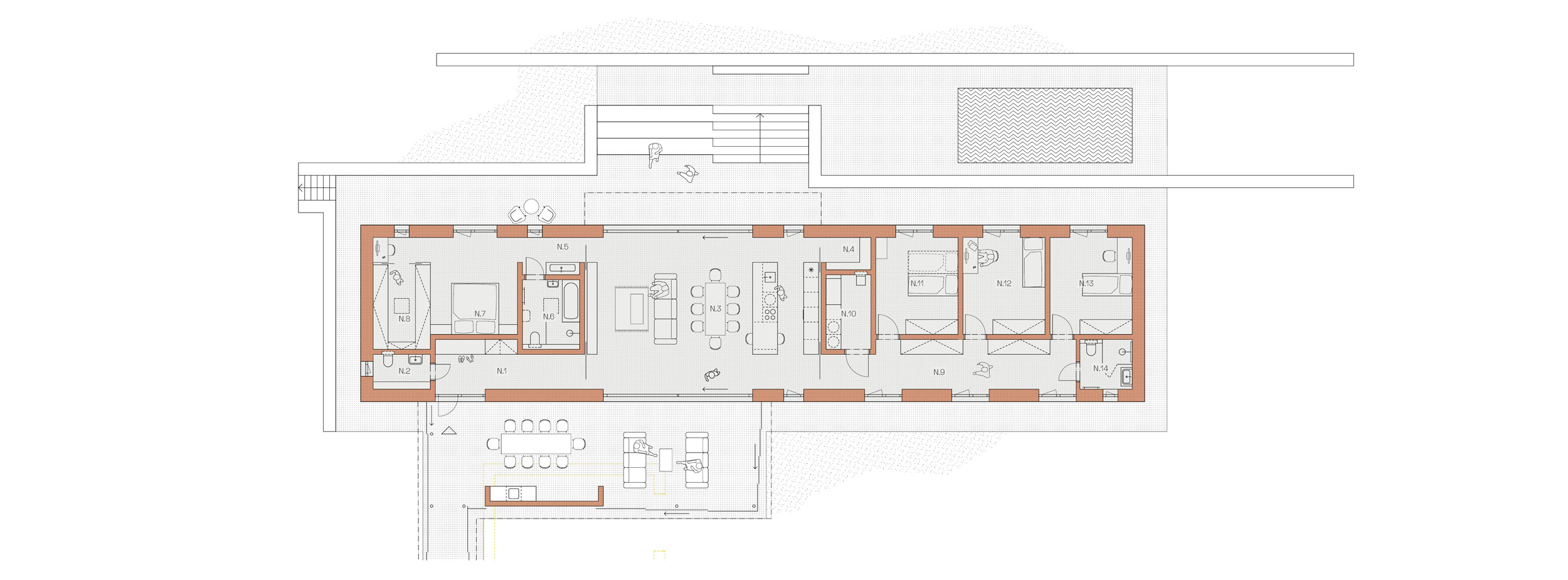
Výsledný návrh umisťuje kompletní program rodinného domu do novostavby, stávající dům však ponechává jako prostor s doplňujícími funkcemi a jako rezervu otevřenou do budoucna pro různá možná využití. Současně stávající dům ale také sehrává důležitou úlohu clony hlavního obytného prostoru od poměrně frekventované silnice. Vztah staveb je stvrzen krytým propojením - platformou, která začíná u parkovacích stání a propojuje budoucí vstupy obou objektů.
Starý dům má být očištěn na původní základní hmotu. Nový dům je navržen jako elementární výrazně horizontální objem. Vzniká kontrapunkt dvou svébytných staveb, které ale dohromady tvoří vzájemně se posilující soubor.